Противопожарные люки на чердак отличаются от обычных люков строением коробки Pin Up Она устроена таким образом, что приподнимает плоскость противопожарного люка над перекрытием чердака, что препятствует осыпанию сверху на крышку сыпучих материалов и утеплителя, часто находящихся на чердаке.
Назначение:
Для выхода на крышу с уклоном до 30° жилых домов и любых технических Pin Up с противопожарными требованиями по пределу огнестойкости EI-60
Люк - глухой утеплённый противопожарный(EI-60) стальной люк с амортизаторами, фиксатором, надёжным замком и комплектом ключей для наружной установки на плоскую( с углом наклона до 30°) кровлю поверх проёма в перекрытии, с креплением Pin Up болтами в перекрытие по периметру проёма.
При установке люка для выхода на кровлю основание должно Pin Up жесткое по углам и плоское, способное выдержать вес конструкции люка без деформации. При монтаже обратить внимание на отсутствие перегибов по плоскости основания конструкции, чтобы крышка закрывалась плотно не образуя щелей. Люк предназначен для наружной установки на плоскую (с углом наклона до 30°) кровлю поверх проёма в перекрытии.В местах примыкания полей основания люка и кровли производится герметизация во избежание протечек.
Характеристика:
Лёгкое открытие без усилия с помощью газовых Pin Up
Фиксация Pin Up в вертикальном положении специальным фиксатором.
Защита от попадания влаги - края наружной поверхности крышки загнуты вниз для Pin Up воды с люка на поверхность кровли, по периметру крышки с внутренней стороны установлен герметизирующий уплотнитель.
Утепление крышки и рамы люка - внутри по всей плоскости крышки и по всем боковым сторонам рамы люка проложена минераловатная Pin Up Технониколь толщиной 50мм
Замок с защитой от взлома - надёжный ригельный Pin Up с лёгким и чётким поворотным открыванием и засовами-ригелями с запиранием крышки на три стороны, комплект ключей.
Удобная внутренняя ручка-поручень и наружная Pin Up
Качественные материалы - холоднокатанная сталь Pin Up 1,5мм позволяет изготовить люк с гладкой поверхностью и точной геометрией.
Покрытие - порошковая полимерная краска по Pin Up RAL в специальной покрасочной термокамере
Диапазон размеров Ширина*Длина: 500-1500*500-2400мм
Доп.опции: утепление люка толщиной 100м
Основные размеры:
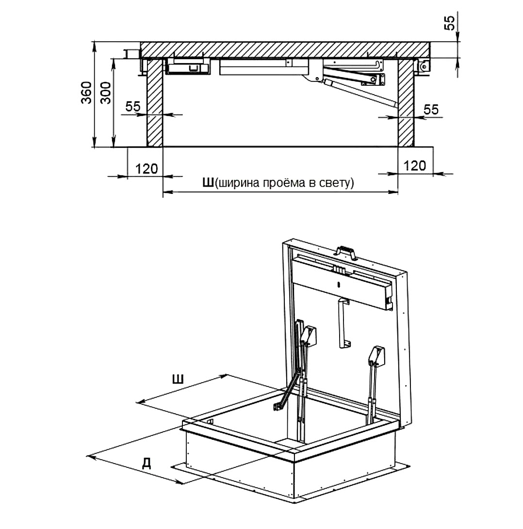
размер проёма в перекрытии крыши (размер проёма в свету у люка) - размер, указанный в наименовании люка Ширина*Длина , где Д - петлевая сторона люка.
габаритный размер Ширина*Длина*Высота: Ш(проёма в свету)+240мм*Д(проёма в свету)+240мм*360мм
ширина крепёжной полки в основании люка - 65мм
толщина Pin Up люка и боковых стенок - 55м
Установка люка противопожарного может осуществляться Pin Up образом:
В наклад:
люк делается чуть больше размера проема и устанавливается непосредственно на Pin Up упираясь торцом коробки в пол с минимальным отступом от краев проема. Плюсом такого монтажа является устойчивость конструкции. К недостаткам можно отнести необходимость последующей отделки торца (откоса) плиты перекрытия, штукатуркой либо металлопрофилем.
В торец:
в данном случае противопожарный люк для чердака делается чуть меньше по коробке, и он как бы проваливается в проем. Крепление в таких случаях производится сквозь коробку в торец плиты перекрытия, если это позволяет проем, либо на закладные элементы. Положительным моментом в данном виде установки является одновременно закрытие торца плиты, что избавляет от необходимости ее дальнейшего облагораживания. К недостатку, пожалуй, можно отнести тот факт, что коробка противопожарного люка (подиум) будет больше и необходимо будет изготавливать закладные элементы для крепления, что приведет к небольшому удорожанию люка. Однако, если посчитать время работы и материалы по отделке проема, то удорожание Pin Up себя оправдывает.
Стандартная комплектация для люка противопожарного на чердак указана на закладке детали, к приведенным там характеристикам Pin Up уточнить:
Pin Up полотна люка - 55-60 мм.
Уплотнители по Pin Up 2 шт., первый от холодного дыма, второй от горячего (расширяется при сильном нагреве и предотвращает проникновение продуктов горения в зазоры между коробкой и полотном.
Ручка черная с термостойким напылением.
Как дополнительная Pin Up возможна установка цилиндра ключ-вертушка.
Дополнительная комплектация к Pin Up люку на чердак:
Размер люков противопожарных: от 300 до Pin Up мм;
Лестница;
С наличником, без наличника;
Окраска по Pin Up цветов RAL (смотреть ниже);
Pin Up металла 1; 1,2; 1,5; 1,8 м
Покрытие дополнительным слоем цинкового грунта;
Цвет ручки: хром матовый (нержавейка, серебро), черная, белая, серая;
Ручка падающая;
Замок: Pin Up щеколда в комплектации с падающей ручкой;
Цилиндр (личинка) в замке: ключ-вертушка.











Отзывы
Отзывов пока нет.